|
|
|
|
|
小區商品房 |
|
|
|
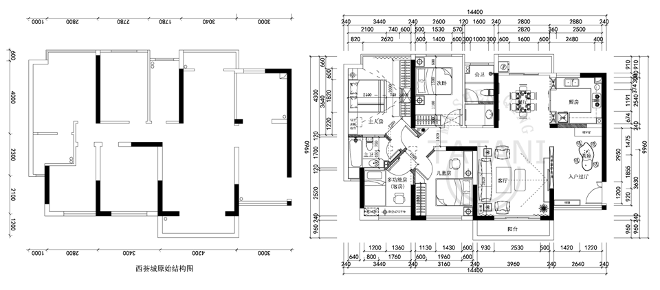
小區商品房與別墅等其它住所比,在設計受到的制約非常大,但各小區的情況有所區別,主要是在物管方面,甚至有的地方,辦理房產證前,如果你把入戶花園或以房間作為“陽臺”送空間的商品房,就在外面加上了,物管本許可的玻璃窗墻,就會給‘非常負責任’的房產局的人,以你平積不合,而要你補上那些增加平方的購房費用,半價變全額,所以如果你沒拿到房產證,就要小心一點,說不定就是地產商在搞鬼;上了鉤再宰多一魚也沒可能,特別是2014年新政出來的時候;甚實對于商品房的改動是要懂很多的,除了建筑知識,允可范圍等,還要看你遇到什么樣的物管,遇到個不通人情,或想中飽私囊的,非正規范的物管人員,你在室內貼個地磚,他都會干涉,所以也沒有絕對的允不允許;但設計套房(商品房)的要求并不是很高,因為很多東西都不用理,首先要著重考慮三點:陽光、空氣、使用空間;設置、材質、風水則其次;我曾被地產商贈名建筑外科手術師,所以分享一下我個人的設計經驗,以下是網上找到以前個人部分設計商業房設計平面圖
; |
 |
| 房子很小,業主是個富二代兼成功人士(未婚),看上這房子就是因為這個大露臺可以做花園,公用衛生間及出花園處走廊的抬高,是為了放排水排污管及對外面露臺的擋水,也借用上原衛生間的部分沉池;這個現場做出來效果非常好;(上圖) |
 |
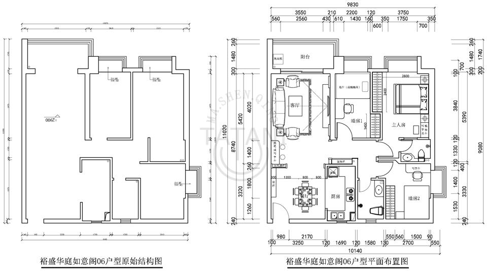
| 業主是建筑土建設計師,有一子一女,但陽臺高窗不可改動,他要求最好可以加上書房,介于廚房很窄卻砌成這樣,是因為入戶門正對廚房門,很少人會買的原因,所以這個方案一出來業主非常滿意,第一天看到方案,當天簽的; |
 |
| 以上是以上業主為一家四口(含老人),由于男女主人有一定的年齡差,很愛女主人,一切以女主人做主,女主人看過多家公司的方案,對這個方案非常喜歡,當時我不在,是駐場人員拿平面方案給他看的,也沒有任何解釋,兩天后約見并在接下來的很短時間簽下了合同,因為有很多公司在爭搶,不斷的電話轟炸,沒有在場就可以把業主帶來,我曾為此為豪,雖然當時我作為設計總監,不直接簽單,但在我的指導下,下面的設計簽單量也很多,跑單量很少;至少在地區上雖不一定是第一,第二第三應還可以算的上; |
 |
| 以上是剛從廣州到東莞做的兩套改一套,地產商樣板房的設計平面圖; |
 |
| 這個時間要近一點,好像是2013的,地址是深圳,主人房衣柜很小,主要是公司職員做不出方案,才出手設計的, |
 |
| 這個好像是梅州興寧的現代風格樣板房,當時相似房型一共做了四個風格; |
 |
| 這個是我為朋友設計的房子,就不多說了, |
 |
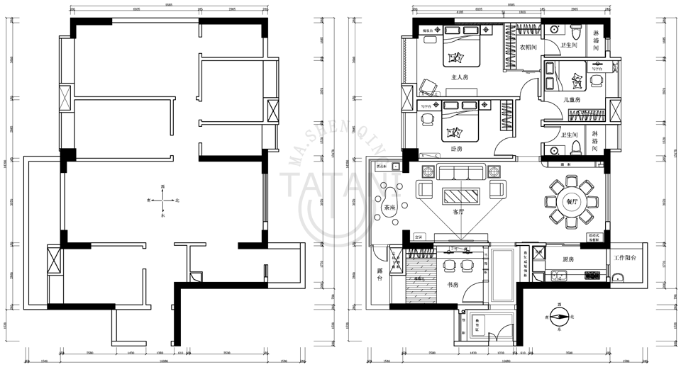
| 這個是原始平面圖,后衛生間中間的柱子是錯的,熟悉建筑的人,一看就知道了,我給出的方案,下面的職員也以這個和我爭論過,最后他去現場對照過后,他才同意,所以我平面方案上,改了回來,業主對于方案也很喜歡,其他很多公司的人,都因這個面影響了設計方案,所以設計土建常規知識也很重要; |
 |
| 這個好像是在電白的,時間是2010年以后,因為2010年以后,我才把圖標的域名換成名字拼音; |
 |
| 這個是以前業主的新房子,因為一個傳說很厲害,現實很失敗的風水師,導致這業主選擇了我,他前后兩套房子都在深圳,而我已經離開了深圳多年,并換了好多次電話,所以他是在網上找到我電話的;這個設計并沒有太多東西,主要以風水為主;當然風水說明圖,我沒放到網上來; |
 |
| 這個戶型在安徽亳州,好像小區叫麗陽春都,這個當時我在那設計和指導多家酒店和KTV施工,我通過朋友關系,做過幾套,都以現在歐式為主,非地產商樣板房,但施工過程中,卻成了地產商的樣板房,這個房子是帶中央空調的,空調和管道為了避開梁,所以地產商的樣板房,為了這個都把天花建的很低,或是一邊壓下來,但我的設計輕微改變了這個,當然我也沒動他們的梁但我的天花卻可以高于梁,因為我藏管道的地方,都是有需要的,因此售樓小姐,帶人來看房,一定要來我的施工現場,因為她們的樣板房,有很多硬傷; |
 |
| 這個也安徽亳州,麗陽春都的,對面戶型,一樣的硬傷是空調及管道,處理方式差不多,但與前面的表面處理不一樣,上面是那里的第二套,下面這個就是第三套,雖然都是歐式,但以前一家區別非常大;業主分別是姜、劉、柴; |
 |
| 這個也安徽亳州 |
 |
| 2012年深圳 |
 |
| 商品房的設計:十年前我去某公司面試設計總監的時候,面試的老板問我,什么是設計;我的回答是“設置+計算=設計;”并以這個為前題,我直接得到老板的認可,并通過了面試,并邀我一道去吃飯,而其他面試者,還在只是下令交了個簡介,走了個過場;當然‘設計是什么’很多人會持有不同態度,我只是針對個人長處;“設計”分開來是‘設置‘’和‘計算’;也就是說“設置+計算=設計;”以建筑類設計為例,建筑是設置,建筑里內的墻樓板屋頂是防護和遮隱設置,梁柱是承重設置;里面的空間也可以說成會客接待、梳洗衛生、睡眠、采光、供氣供暖等設置,家具也可以說是儲放、書寫、睡眠等設置、電器同樣可以按功能、需求、目的分類,而可以歸類于某種設置;服裝是保暖設置,其扣子、拉鏈、衣袋都是功能性設置,印花為視覺感設置,印式來源,如地區、民族等,可以說成是體現那里的設置;平面廣告LOGO是公司的形象區別設置,分開來有其公司的名字,拼音,這些都是設置,就不一一解釋了,通過這些設置組合在一起,就要計算,如色彩用多少,兩色對比深淺是否合適,有量變就說明要計算;雖然很多只是隨意加減; |
|
|
|
|
|
|
|
|
|
|
|
|
 |
| 設計及施工重點針對廣東茂名地區,并少數項目現與全國各地區公司及個人展開合作; |
|
|
|
|
|