|
|
|
|
|
街道自建房 |
|
|
|
街道一般都是自建房,但別墅類有所區別,所以設計街道自建房,只有一個多少米乘多少米的規劃尺寸,因為存在商業價值,所以要著重考慮這個,畢竟誰也不介意,并希望多一份收入;設計這個的時候,首先要了解清楚各街道的要求,如首層的高度,二層外飄多少,兩棟建筑的間格是多少?有特定風格沒有,這些是關系到整一條街,和你所設計的房子的價值;但是有一點是要注意的,那就是不要在飄位做廚房和放睡床,和用于工作或學習的寫字臺;而且一樓店面一定要做門;第二還要考慮他的未來使用可轉變性; |
 |
| 一樓除了樓梯外,其它方方正正,除了與二層一樓的梁柱外,只有樓梯底下有個衛生間,只是空曠的外租空間,所以在這就不浪費太多網頁空間了; |
 |
| 非店鋪式住宅,某些街道因發展原因,暫時不設一樓店面,但按以后有條件的區域,可以考慮以后更改為店鋪的可能;本住宅一樓樓梯建造時為直梯,第一節樓梯及平面為磚砌結構,可以簡單拆除; |
 |
 |
| 街道房后面有院子的建筑平面設計; |
 |
| 這個時間要近一點,好像是2013的,地址是深圳,主人房衣柜很小,主要是公司職員做不出方案,才出手設計的, |
 |
| 這個好像是梅州興寧的現代風格樣板房,當時相似房型一共做了四個風格; |
 |
| 這個是我為朋友設計的房子,就不多說了, |
 |
| 這個是原始平面圖,后衛生間中間的柱子是錯的,熟悉建筑的人,一看就知道了,我給出的方案,下面的職員也以這個和我爭論過,最后他去現場對照過后,他才同意,所以我平面方案上,改了回來,業主對于方案也很喜歡,其他很多公司的人,都因這個面影響了設計方案,所以設計土建常規知識也很重要; |
 |
| 這個好像是在電白的,時間是2010年以后,因為2010年以后,我才把圖標的域名換成名字拼音; |
 |
| 這個是以前業主的新房子,因為一個傳說很厲害,現實很失敗的風水師,導致這業主選擇了我,他前后兩套房子都在深圳,而我已經離開了深圳多年,并換了好多次電話,所以他是在網上找到我電話的;這個設計并沒有太多東西,主要以風水為主;當然風水說明圖,我沒放到網上來; |
 |
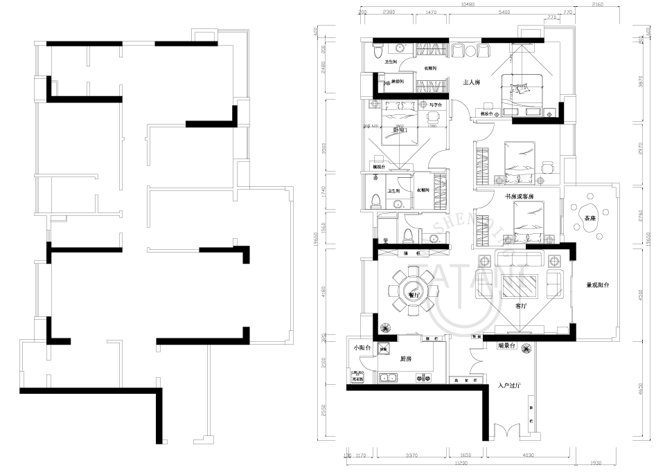
| 這個戶型在安徽亳州,好像小區叫麗陽春都,這個當時我在那設計和指導多家酒店和KTV施工,我通過朋友關系,做過幾套,都以現在歐式為主,非地產商樣板房,但施工過程中,卻成了地產商的樣板房,這個房子是帶中央空調的,空調和管道為了避開梁,所以地產商的樣板房,為了這個都把天花建的很低,或是一邊壓下來,但我的設計輕微改變了這個,當然我也沒動他們的梁但我的天花卻可以高于梁,因為我藏管道的地方,都是有需要的,因此售樓小姐,帶人來看房,一定要來我的施工現場,因為她們的樣板房,有很多硬傷; |
 |
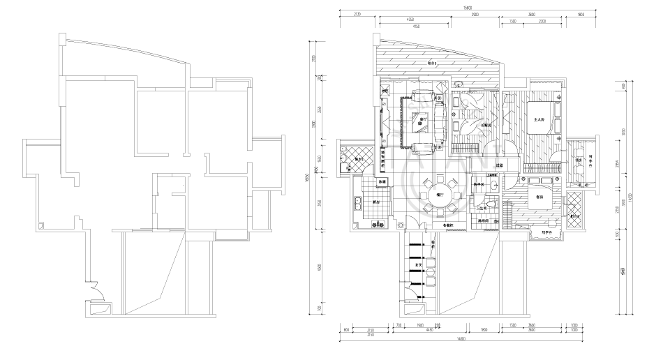
| 這個也安徽亳州,麗陽春都的,對面戶型,一樣的硬傷是空調及管道,處理方式差不多,但與前面的表面處理不一樣,上面是那里的第二套,下面這個就是第三套,雖然都是歐式,但以前一家區別非常大;業主分別是姜、劉、柴; |
 |
|
|
|
|
|
|
|
|
|
|
|
|
|
|
 |
| 設計及施工重點針對廣東茂名地區,并少數項目現與全國各地區公司及個人展開合作; |
|
|
|
|
|